
ONDERNEMEN AAN DE UTRECHTSE WATERKANT
Aan het water, nabij The Wall Utrecht, wordt Wood Hub ontwikkeld: een modern en duurzaam houten bedrijfsverzamelgebouw op een groene, uitstekend bereikbare locatie. Dit hoogwaardige project speelt in op de toenemende vraag naar energiezuinige, duurzame bedrijfsruimten in de regio Utrecht.
De bedrijfsunits zijn flexibel te combineren van circa 185 m² tot circa 2.800 m² en bieden daarmee volop ruimte voor groei, gebruik en verhuur. Dankzij de hoogwaardige afwerking, duurzame houtbouw en aantrekkelijke ligging vormt Wood Hub een representatieve werkomgeving waar comfort, uitstraling en toekomstgericht ondernemen samenkomen.
25% van de units is verkocht onder voorbehoud. Start bouw: Q1 2027 | Oplevering: Q2 2028.
Features
Circa 2800 m2 bedrijfs- en kantoorruimte
Luxe gemeenschappelijke voorzieningen
Volledig houtbouw
Circulair en gasloos
Duurzame LED-verlichting
Eigen parkeerplaatsen
Zonnepanelen
Warmtepomp, WTW-installatie, Vloerverwarming
Elektrisch hekwerk
Ruim terras aan het water
Eigen balkons en dakterrassen
Slim communicatie- en beveiligingssysteem
HOOGWAARDIG, COMPLEET & CIRCULAIR
De entree van Wood Hub maakt direct indruk met een stijlvolle lobby en koffiebar als centrale ontmoetingsplek. De hoogwaardige afwerking zet zich door in het hele gebouw, met comfortabele werkplekken, luxe sanitaire voorzieningen en een eigentijdse mix van hout, beton en glas. Dankzij de warmtepomp, vloerverwarming en geïntegreerde installaties is het binnenklimaat duurzaam en comfortabel. De oplevering voor de gemeenschappelijke ruimten zijn volledig turnkey en voor de units casco+.
PRETTIGE OMGEVING
De omgeving van Wood Hub is sfeervol door de groene beplanting, stijlvolle verlichting en verzorgd straatwerk. Aan het water ligt een gezamenlijk terras, bereikbaar vanuit de lobby en vanaf elke verdieping via een moderne spiltrap. De kavel biedt parkeergelegenheid met optie tot laadpunten, een fietsenstalling met oplaadfaciliteit en een elektrisch toegangshek. Direct vanaf de eigen parkeergelegenheid wandel je het groene pad op langs de kavel, een ideale plek voor een korte pauze aan het water.
Locatie
Eiland-K aan de Middenwetering in Utrecht biedt een unieke zichtlocatie aan de entree van bedrijventerrein De Wetering Zuid. De kavel ligt op een groen, waterrijk eiland met directe aansluiting op een publiek jaagpad en combineert representativiteit met een prettige werkomgeving. Dankzij de ligging aan de A2 bij knooppunt Oudenrijn en de nabijheid van voorzieningen als The Wall, het St. Antonius Ziekenhuis en diverse bedrijven is dit een toplocatie met uitstekende bereikbaarheid per auto en openbaar vervoer.
Bekijk het beschikbare aanbod
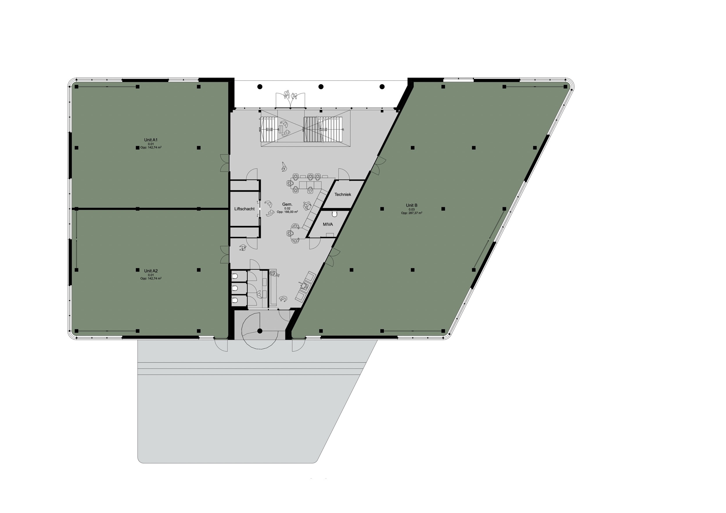
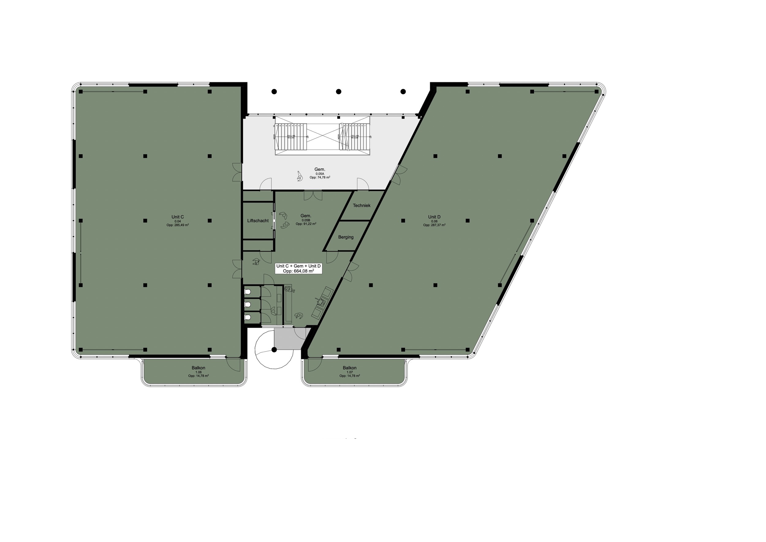
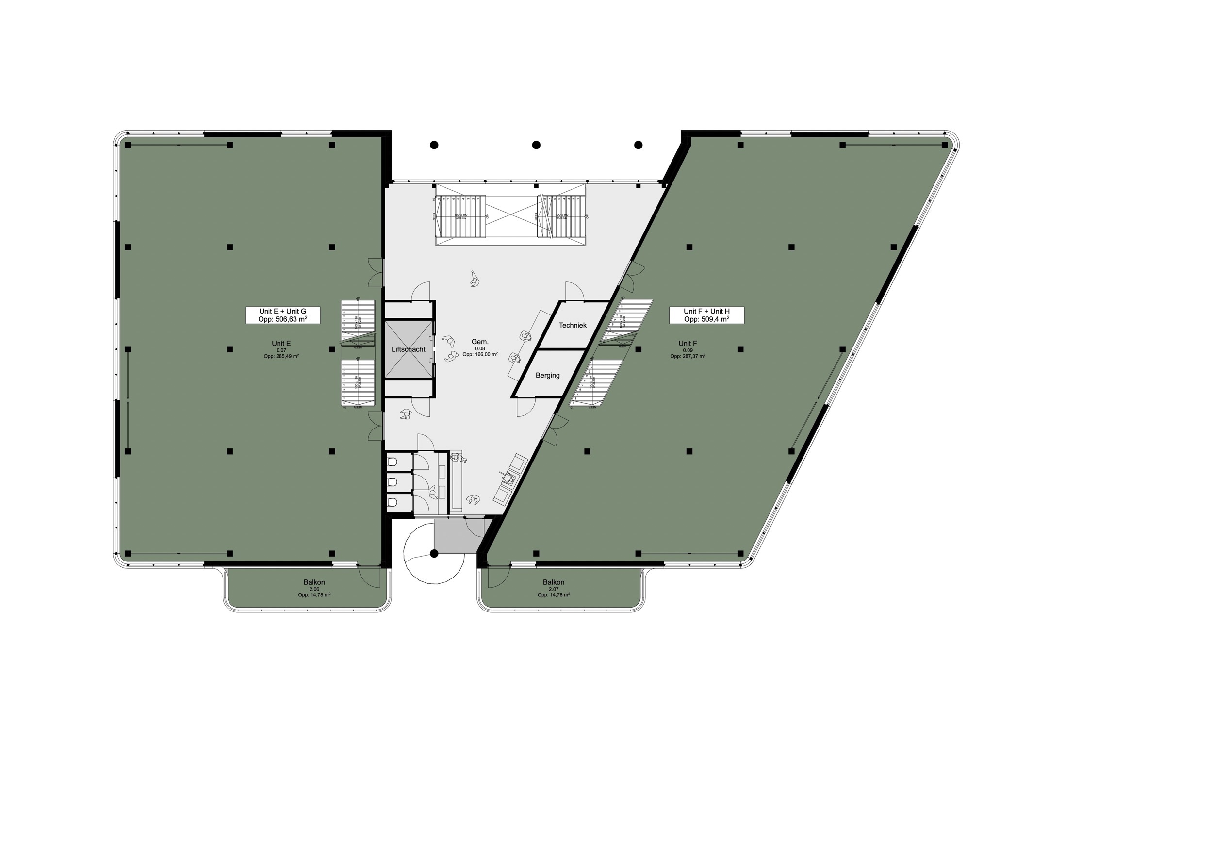
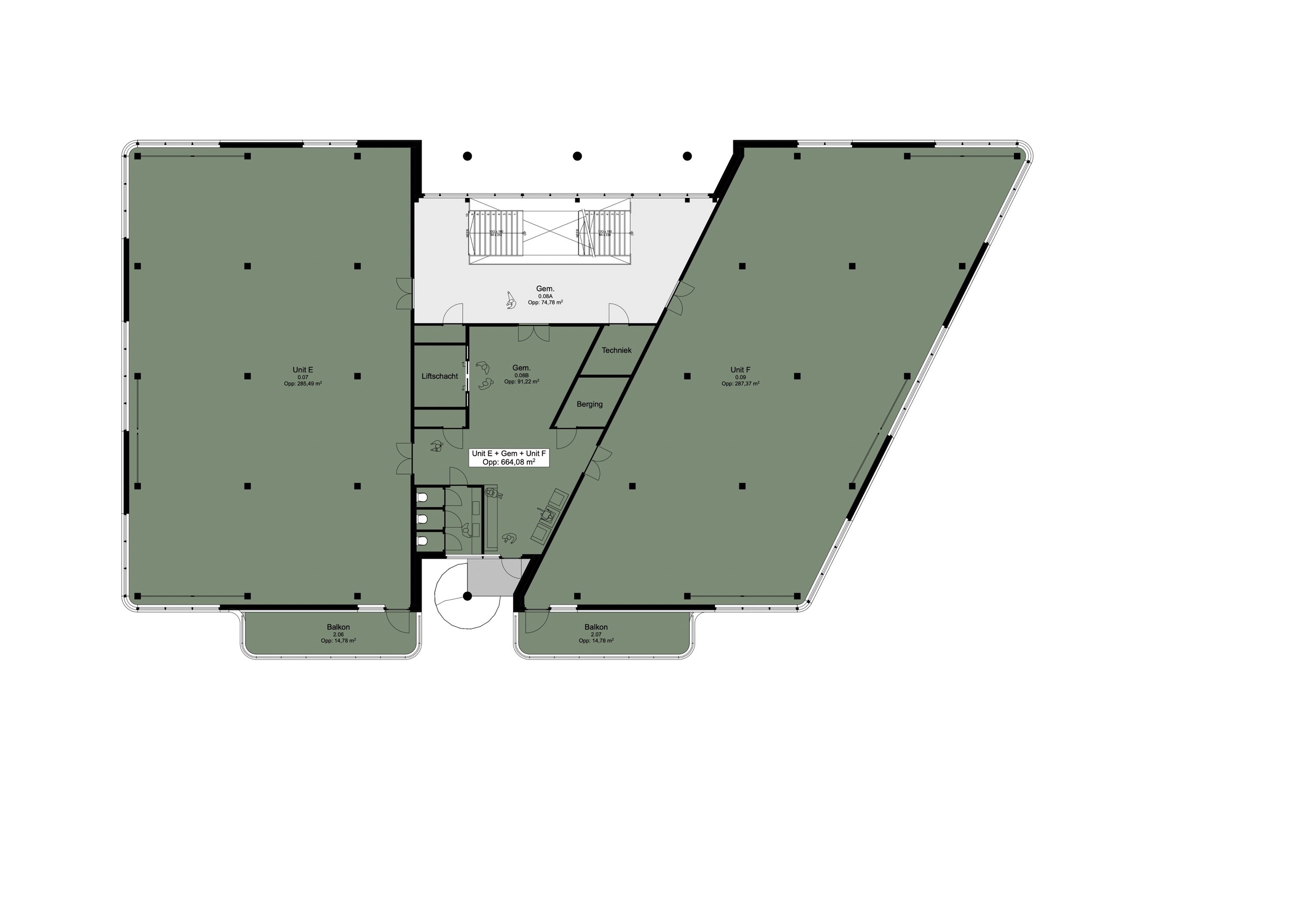
Dit nieuwbouwproject omvat een gebouw van circa 2.800 m², waarin maximaal acht bedrijfsunits (appartementsrechten) worden gerealiseerd. De units zijn beschikbaar vanaf circa 185 m² en kunnen naar wens worden gecombineerd.
Combineren kan zowel verticaal als horizontaal. Bij verticale samenvoeging wordt een interne trap geplaatst; horizontaal combineren gebeurt door één of meerdere volledige verdiepingen af te nemen. Hierdoor ontstaan diverse indelingsmogelijkheden, geheel af te stemmen op de wensen van de gebruiker.
De start van dit project is afhankelijk van de verlening van een bouwvergunning onder voorbehoud van verkoop van minimaal 75% van de units.
Bekijk de verschillende mogelijkheden en varianten.
UNITS & MOGELIJKHEDEN
De plattegronden geven een indruk in de diverse mogelijkheden. Neem contact om jouw wensen te bespreken.
OPTIE BEGANE GROND

OPTIE BEGANE GROND

OPTIE EERSTE VERDIEPING

OPTIE EERSTE VERDIEPING

OPTIE TWEEDE VERDIEPING

OPTIE TWEEDE VERDIEPING

OPTIE DERDE VERDIEPING

OPTIE DERDE VERDIEPING

Contact
Wood Hub Utrecht Spring Real Estate Utrecht Maliebaan 53 Z 3581 CD Utrecht


Office hours
Maandag - Vrijdag: 09:00 - 18:00
Zondag alleen op afspraak.